Projekt: Bebauungsplan "Barbel-West"

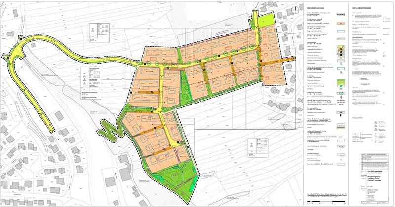
Mit der Neuausweisung des Wohngebietes „Barbel-West“ reagiert die Stadt Horb auf die stetige Nachfrage nach Einfamilienhaus-Grundstücken im Ortsteil Talheim. Seit den 1970er Jahren wird eine Wohngebietsentwicklung auf der Anhöhe über den Ortsteilen Unter- und Obertalheim realisiert. Ein Rahmenplan stellt die städtebauliche Entwicklung eines gemeinsamen Baugebietes als wesentlicher Baustein des politi-

schen Zusammenschlusses der beiden Ortsteile Unter- und Obertalheim dar. Der Bebauungsplan „Barbel-West“ umfasst einen ersten Bauabschnitt, der bei Bedarf flexibel erweitert werden kann. Neben städtebaulichen Erwägungen orientiert sich die Grundstruktur von „Barbel-West” an der Verfügbarkeit von Grundstücken und der Nachfragesituation von Bauinteressenten (Grundstücksgrößen, Bautypen, Gebäude-

ausrichtung). Damit wird eine nachfragegerechte, umsetzungsorientierte und finanziell tragfähige Planung sichergestellt. Die Grundstücksgrößen lassen sich bei Bedarf flexibel an eine geänderte Nachfrage anpassen.

 

Satzungsbeschluss: 2011 / Baubeginn Erschließung: Frühjahr 2012

Projektleitung für KRISCHPARTNER

Auftraggeber: Stadt Horb

2010/ 2011